Share
domik

Casa anziani Bellinzona

con Arch. M. Gaggini - Bellinzona 2017

 

Concorso, 1. premio (anno: 2007)

Bellinzona 2017
Con  Arch. M. Gaggini

Foto: Alexandre Zveiger, Lugano   www.zveiger.ch

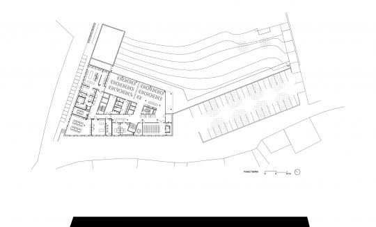
L’idea centrale del progetto è la creazione di un nuovo isolato urbano verde, dove i due principali attori, la villa esistente e la nuova casa per anziani, sono in costante dialogo tra loro, diventando così i maggiori punti di forza del nuovo parco. Due elementi nel parco quindi, che si valorizzano a vicenda. Il nuovo isolato è completato dalla chiesetta a nord e dalla dependance a sud, che a loro volta vengono integrate nel progetto. Il parcheggio viene trattato come un giardino, vero e proprio atrio dell’isolato e della nuova casa.

Al piano terreno si sviluppano gli ambienti comuni, in parte affacciati sulla strada e sulla città ed in parte sul parco. Ai piani superiori l’impostazione tipologica compatta con un nucleo di servizi centrale, permette la razionalizzazione degli spazi e il contenimento dei costi.

L’edificio è stato concepito e realizzato secondo diversi principi di sostenibilità: spazi pubblici, studio del verde, standard Minergie, riscaldamento ecologico, pannelli solari, rispetto dei costi di costruzione.

  • /