Share
domik

MONOLITH

2020

2020

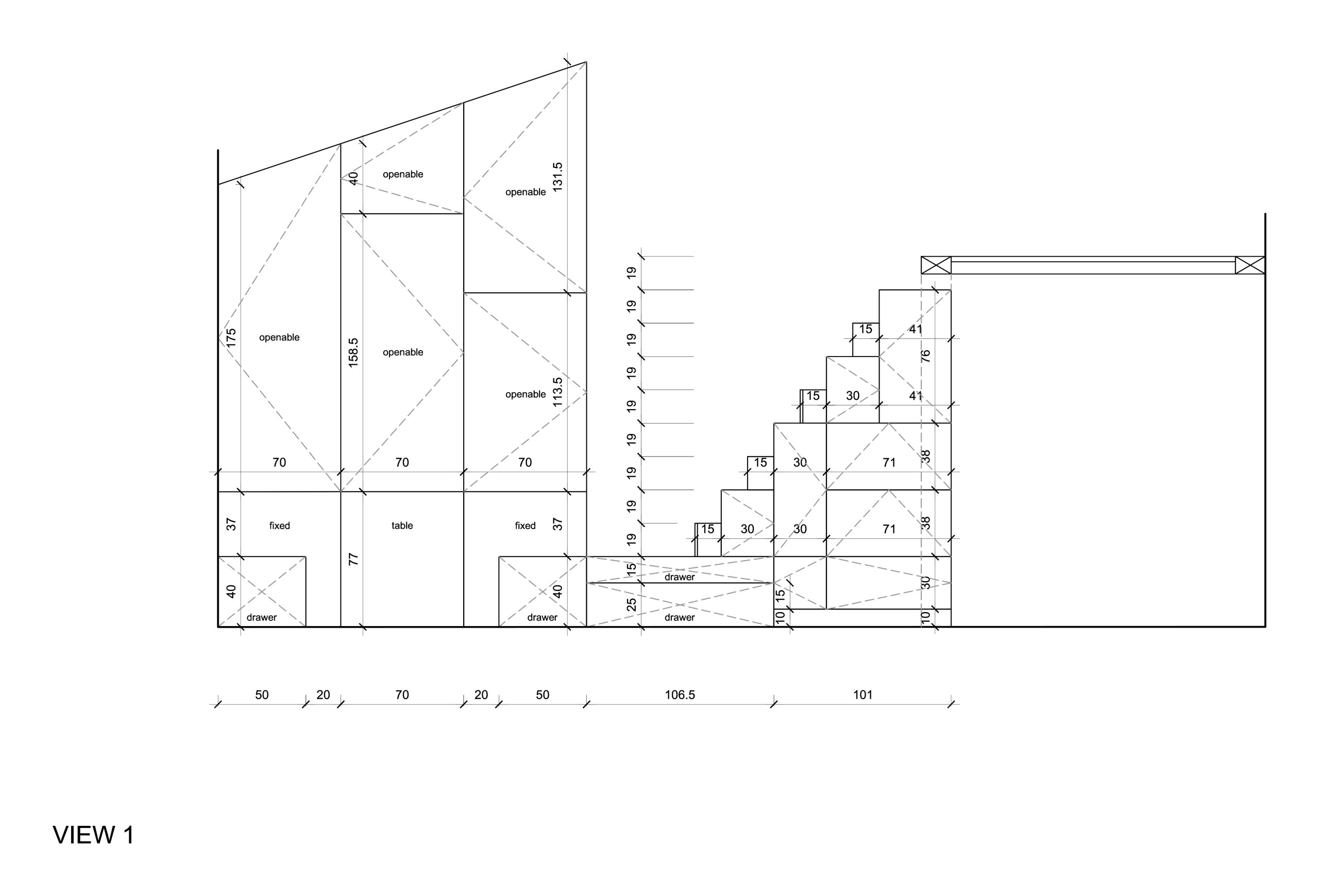
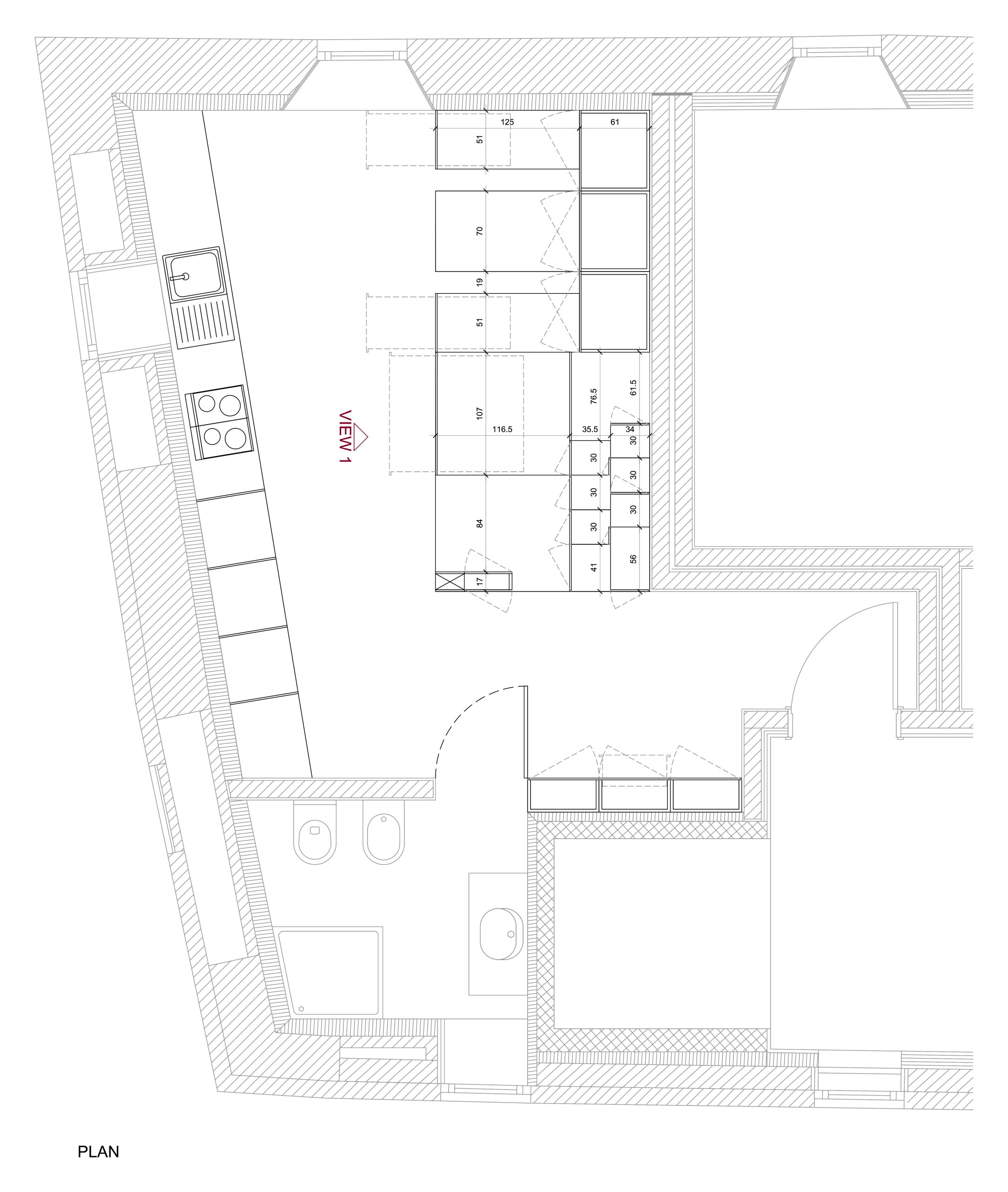
Il progetto per questo piccolo monolocale di 30 mq a Lugano, Svizzera, implica l’inserimento di un mobile su misura che con un solo gesto risolve sia gli aspetti funzionali, sia gli aspetti organizzativi, massimizzando il poco spazio a disposizione.

Il progetto vive di una semplicità apparente. Tutto è progettato per massimizzare la funzionalità: armadi, tavolo e sedie sono integrati nella forma e nella struttura del mobile. La falda inclinata del tetto dell’edificio permette di avere un piccolo mezzanino, dove è integrato il letto.

Questa semplicità apparente è in realtà una complessa serie di incastri e interconnessioni di piani e di volumi, che risolvono tutti gli aspetti funzionali richiesti e danno una forte identità al monolocale.

Tale contrapposizione viene accentuata dall’uso dell’antracite per l’esterno al quale si contrasta il legno naturale per l’interno.

 

Parte attiva nella natura di questo progetto è l’uomo, che con i suoi gesti quotidiani modifica continuamente lo spazio, l’organizzazione, l’estetica e l’essenza stessa del progetto.

  • /